武 汉 工 商 学 院
招(议)标文件
招标项目名称: 陶艺实验室建设项目招标
编 号:G2016-01
9728太阳集团招投标办公室
二○一六年一月十一日
第一部分 招标邀请
根据我院实际需求,现面向社会具有实力的单位进行我院陶艺实验室建设项目的招标,欢迎能按标书要求提供产品并能保证售后服务的厂家前来投标。
一、招标项目名称:陶艺实验室建设项目招标。
2015年 月 日下午5:00以前,经招标方认可资格合格的投标单位携带有关有效证件到9728太阳集团招投标办公室办理招标文件购买事宜,每份招标文件需交200.00元资料费(该费用收取后概不退还)。
每个投标单位递交标书的同时,应交纳10000.00元投标保证金,开标后未中标单位的保证金在十日内不计息全额退还,中标单位的保证金则转为合同履约保证金。
二、投标截止时间
投标单位于2015年 月 日上午9:30以前,将投标文件交到9728太阳集团招投标办公室。如有延误,视为废标;中标单位应在我院规定的时间内与我院签订合同,逾期视中标单位放弃中标,我院有权扣留保证金。
三、付款方式:
供货完毕经院方验收合格后付总货款的90%,从验收合格之日起满一年后支付总货款的10%。
四、开标日期:另行通知
招标单位:9728太阳集团
执行单位:9728太阳集团招投标办公室
地 址:武汉市洪山区黄家湖西路3号
联 系 人:技术部分 罗祥圣 15327316494
商务部分 瞿助理 88147381
第二部分 投标须知
一、招标方式:邀请招标、议评开标。
二、投标者要求及相关说明:
1、投标者具有独立法人资格,具有相应的经营资质和一定经营规模,具有良好的经营业绩。
2、所供产品必须具有明确的生产厂家、产地证书、合格证、产品质检报告等。
3、投标价均按人民币报价,且为含税价。
三、投标费用:无论投标结果如何,投标者自行承担投标发生的所有费用。
四、投标书内容
1、投标书正本一份,副本五份。如副本内容与正本内容不符,则以正本为准(投标完后,标书概不退还);
2、产品详细报价;
3、故障响应时间及服务承诺细则;
4、投标公司简介、企业法人营业执照、法人代表人身份证复印件和委托代理人身份证复印件、法人授权委托书、税务登记证、主要业绩等。
5、投标公司须列举近三年来在湖北地区的经营业绩,包含联系人及联系方式,供货日期,合同金额等,至少列举3例以上,用表格形式。(务必真实)
6、请投标方严格按照我方拟定的标书文件的顺序报价。
五、开标与评标:
1、开标时间和地点:另行通知
2、属于下列情况之一者视为废标:
2.1投标文件送达招标单位的时间超过规定的投标截止时间。
2.2投标文件未经法定代表人或委托代理人签字。
2.3开标后发现招标文件内容有虚假材料或信息。
3、在开标之前,不允许投标方人员与评标成员接触,如果投标方试图在投标书审查、澄清、比较及签合同时向投标方人员施加不良影响,其投标将被视为无效投标或取消投标资格。
4、本次招投标采取评标员集中议标方式,对未中标的单位我方不负责解释。
5、投标单位不得相互串通损害招标单位的利益,一旦发现各投标单位之间串通作弊、哄抬标价,招标单位将取消所有参与串通的投标单位的投标资格并没收投标保证金。
六、中标与签订合同
1、自开标之日起一周内,招标单位向符合条件的单位进行考察,最后商议定标。
2、中标单位如果未按招标单位规定的日期签订合同,或故意拖延签订合同,则招标单位可以扣除其投标保证金并取消其中标资格,另选中标单位。
3、中标单位的投标保证金转为合同履约金,
4、本招标文件未尽事宜,以合同为准。
七、投标单位如有疑问,可以向我方招标负责人进行咨询。
八、9728太阳集团招投标办公室保留此招标文件的解释权。
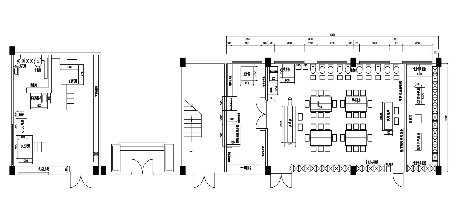
第三部分 技术参数
一、仪器设备购置清单
序号 | 仪器设备名称 | 型号规格 | 数量 |
1 | 全智能液晶屏高温电窑炉(不锈钢外壳) | BTH-GDY-50B 0.5 m³ | 1 |
2 | 全智能液晶屏高温电窑炉(不锈钢外壳) | BTH-GDY-07B 00.7 m³ | 1 |
3 | 高温气窑(不锈钢外壳)
| BTH-GDY-50 0.5m³ | 1 |
4 | 烤花窑(不锈钢外壳)
| HC-KHY-01 0.5m³ | 1 |
5 | 车模机 | 900×700×1255mm BTH-CMZ-2 | 1 |
6 | 吹釉台 | 930×1350×1070 | 1 |
7 | 真空练泥机 | BTH-ZKLNL-3 | 1 |
8 | 角磨机 | GWS7-100T石工套装 | 2 |
9 | 真空脱泡箱/配套真空泵 | 1000×1000×1200mm/2X-70 | 1 |
10 | 模压成型机 | 350×350×1200mm HC-YMJ-1 | 1 |
11 | 烘干箱 | BTH-HGX | 1 |
12 | 日本新宝 拉坯机 | RK-3E-S 750×572×580 | 1 |
13 | 03型拉坯机 | BTH-BLP-03B W580×715×365mm | 5 |
14 | 陶瓷快速球磨机 | BTH-QTQ-250 | 1 |
15 | 陶瓷泥浆搅拌机 | BTH-QTQ-2T 1500×1300MM | 2 |
16 | 美容美发店工具车 | 五层铁轮80*40*30 | 16 |
17 | 圆形带轮垃圾桶 | 80L工业垃圾桶AF07503 555*505*745mm | 10 |
18 | 垃圾桶 带轮垃圾桶 | 480*550*800mm 100L B-002 | 10 |
19 | 超宝带拉杆 三速吹风机鼓风机(对地吹) | CB900E 480*440*510 | 1 |
20 | 超宝 商用超静音强力干湿尘吸水机 吸尘器 | 3000W功率 80L吸CB80-3 100*440mm | 1 |
21 | 快速接头气泵快速接头 | 内丝快接公头 2’;外丝快接公头 2’ 风管快接公头 2;宝塔快接公头 2’ 内丝快接母头 2’;外丝快接母头 2’ 风管快接母头 2’;宝塔快接母头 2’ | 8*10 |
22 | 拉坯教学工具包 | 78件/套,满足拉坯教学基本需求工具包 | 14 |
23 | 捏雕教学工具包 | 32件/套,满足捏雕教学基本需求工具包 | 30 |
24 | 雕塑转台 | 转台尺寸:50*50cm 高低调节范围:90*114cm 外形尺寸:50*50*114cm | 10 |
25 | 特白泥 | 1、10kg/袋规格包装,方便搬运; 2、百陶会专用泥; 3、原矿高岭土成分,广泛用于陶艺拉坯课堂。 | 20 |
26 | 彩泥 | 8色/套、浅蓝、钴蓝、浅红、草绿、果绿、大红、桔红、黄色;被广泛用于陶艺捏雕课堂。 | 2 |
27 | 中温单色釉 | 温度: 1180-1280℃,2.5公斤桶装; | 14 |
28 | 中温开片釉 | 温度: 1180-1280℃,2.5公斤桶装; | 10 |
29 | 中温结晶釉 | 温度: 1180-1280℃,2.5公斤桶装; | 8 |
30 | 手扳式滚 压压坯机 | 电压:380V 外形尺寸: 长=800mm宽=750mm 高=550mm 手杆长度:1200 mm 整机重量:140kg | 1 |
31 | 车模刀更 换式 | 更换式刀头,6件套。 | 2 |
32 | 空压机不锈钢快插气管接头充气泵内螺纹三通 | 8mm | 6 |
33 | 空压机专用油路清洗枪 | 弯嘴 | 3 |
34 | 油漆喷枪 喷漆枪下壶 | 上吸式W77 | 10 |
35 | 鼓风机 |
| 1 |
36 | 彩色喷墨打印机 | HP1111 | 2 |
37 | A3塑封机 | 得力3895 | 1 |
38 | 电钻 | GBM13RE | 2 |
39 | 小型电磨机/雕刻机 | DREMEL200-N/6 | 2 |
40 | 热风枪 | GHG500-2 | 2 |
41 | 电子称 | 300KG | 1 |
42 | 电子天平 | 0.01-1000g/DS-01 | 4 |
二、基础建设
序号 | 分项工程名称 | 制作工艺 | 工程量(㎡) |
1 | 烘房、工具房、物料间墙砖砌封(12CM),双面粉刷 | 加气块砖墙 | 46.8 |
2 | 烘房、工具房、物料间工具架、釉料架、石膏模具架 | 货架加轮子 | 20 |
3 | 普通防盗门 |
| 1 |
4 | 双开门 |
| 1 |
5 | 水电改造 |
| 1项 |
6 | 窑房泥坯悬臂式货架 | 钢材 | 5(个) |
7 | 学生作品悬臂式货架 | 钢材 | 10(个) |
8 | 操作台(学生) | 木质/不锈钢/轮式 | 8 |
9 | 操作台(教师) | 木质/不锈钢/轮式 | 1 |
10 | 木方凳 |
| 40 |
11 | 沙发 | 钢制2m | 1 |
12 | 不锈钢水槽 | 3 | 6 |
13 | 水电改造 |
| 1 |
14 |
|
|
|
15 | 展厅作品展示架、展示柜 | 8*2米带锁成品展柜、独立展柜5个 | 1 |
16 | 玻璃展柜(购买) | 宜家 | 4 |
17 | 揉泥凳 | 木质/不锈钢 | 5 |
18 | 展厅移动隔断门 | 成品隔音板 | 7米 |
19 | 教室分隔双开门 | 双开门 | 1套 |
20 | 窑房顶晒坯台不锈钢栏杆 | 不锈钢条/不锈钢丝 | 17米 |
21 | 不锈钢防盗窗 |
| 5 |
22 | 窑房顶晒坯台不锈钢栅栏门 | 不锈钢 | 1 |
23 | 窑房顶不锈钢晒坯架 | 不锈钢 | 5 |
24 | 铁质登高梯02 |
| 2 |
25 | 手推车02 |
| 2 |
26 | 周转箱(收纳箱) |
| 20 |
27 | 泥坯托方板(400*400) | 实木榫卯 | 60 |
28 | 泥坯托长板 | 实木 | 60 |
29 | 注浆台 | 木质/不锈钢 | 1 |
30 | 乐视智能电视60寸 |
| 1 |
31 | 教学用白板(可移动) |
| 1 |
32 | 插线板 | 公牛 | 4 |
三、图纸
